销售①:13508662630 销售②:13507271573
公司地址:襄阳市樊城区春园西路贾洼工业园 邮箱:xfycdq@163.com
发布时间:2017-05-13
浏览量:0
发布人:未知
选用250Wp多晶硅电池组件,相关参数如下:
| 序号 | 项目名称 | 参数指标 |
| 1 | 峰值功率 | 260Wp |
| 2 | 峰值电压 | 30.2V |
| 3 | 峰值电流 | 8.29A |
| 4 | 开路电压 | 37.3V |
| 5 | 短路电流 | 8.84A |
| 6 | 温度功率系数 | -0.40%/℃ |
| 7 | 开路电压温度系数 | -0.30%/℃ |
| 8 | 短路电流温度系数 | 0.04%/℃ |
| 9 | 额定电池工作温度 | 45±2℃ |
| 10 | 工作温度 | -40~+85℃ |
| 11 | 最高系统电压 | 1000V |
| 12 | 重量 | 19kg |
| 13 | 外形尺寸 | 1640mm×992mm×40mm |

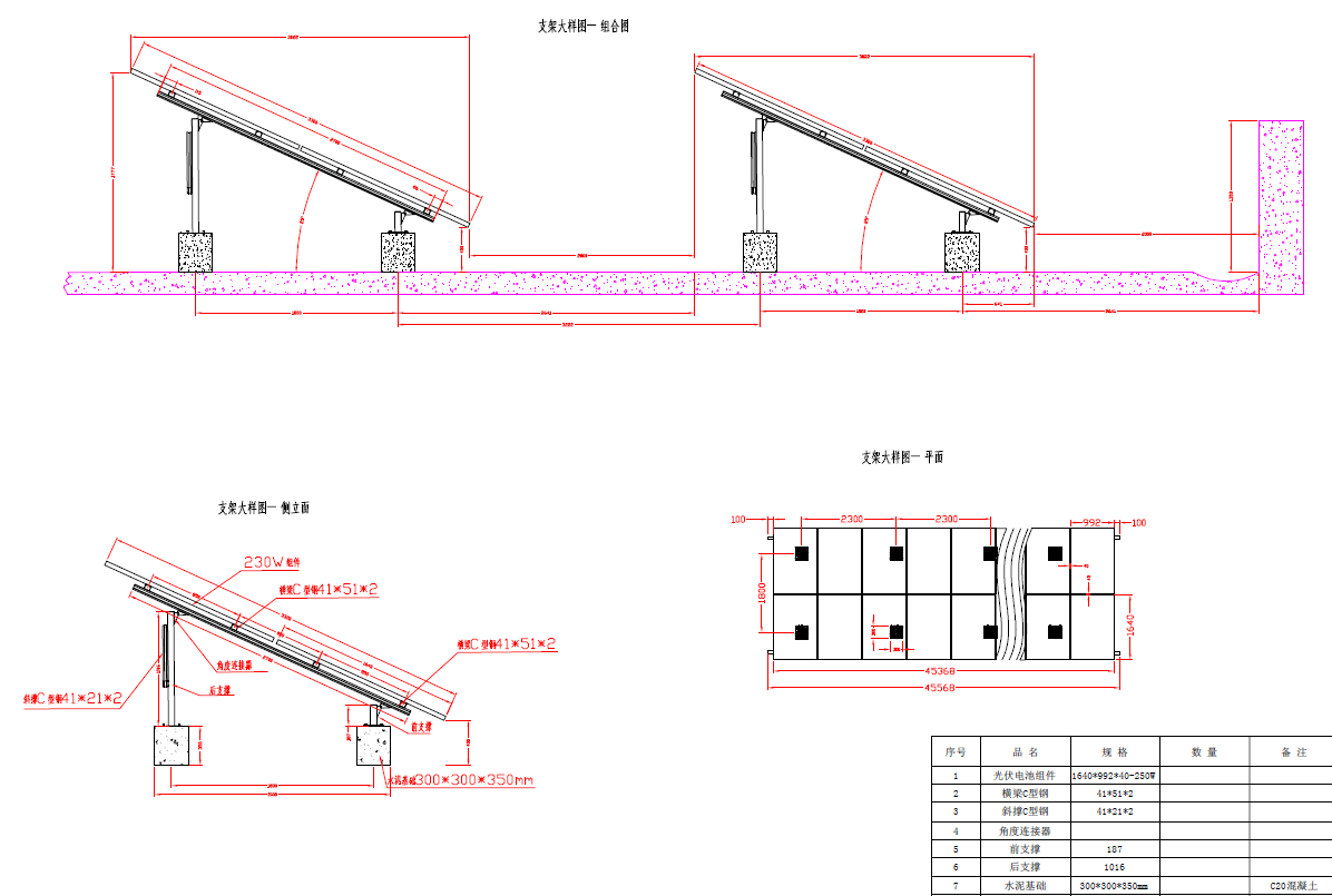
⑥光伏组件安装图纸








(不想等待可点击按钮通过QQ进行沟通,或直接电联。)
关闭